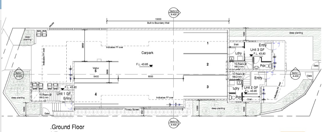
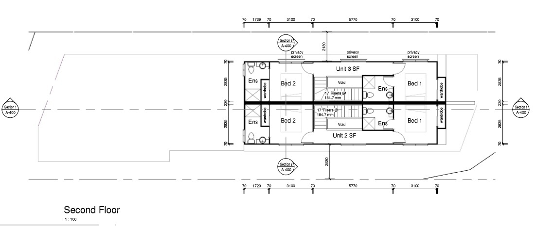
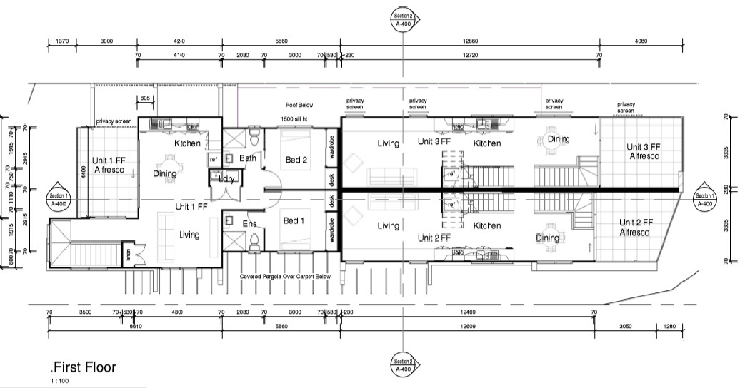
APPROVED 3 TOWNHOUSE DEVELOPMENT

Looking for a small townhouse development opportunity.

Currently occupying this site in Gaythorne is a timber home in original condition with a rental income and approvals to build 3 townhouses.

Situated 9km from Brisbane CBD within walking distance to public transport, café’s, restaurants & clubs with easy access to schools and major shopping … this is an ideal investment for the right investor

-          427m2 land

-          DA Approval in place

-          3 Bedroom house onsite

-          Corner position

-          Current Rental of $325 per week

To discuss the project , taking it through op works , construction and sales of the finished townhouses .. call Lex Davies 0412 960912 and let me help you reach your property ambitions

3 1 1
Suburb Gaythorne
Price FOR SALE
Land Area 427 m2

Quick Links

Agent Details

Lex Davies photo

Lex Davies

0412 960 912
View Profile